Status: im Bau
Bauherr: öffentlich
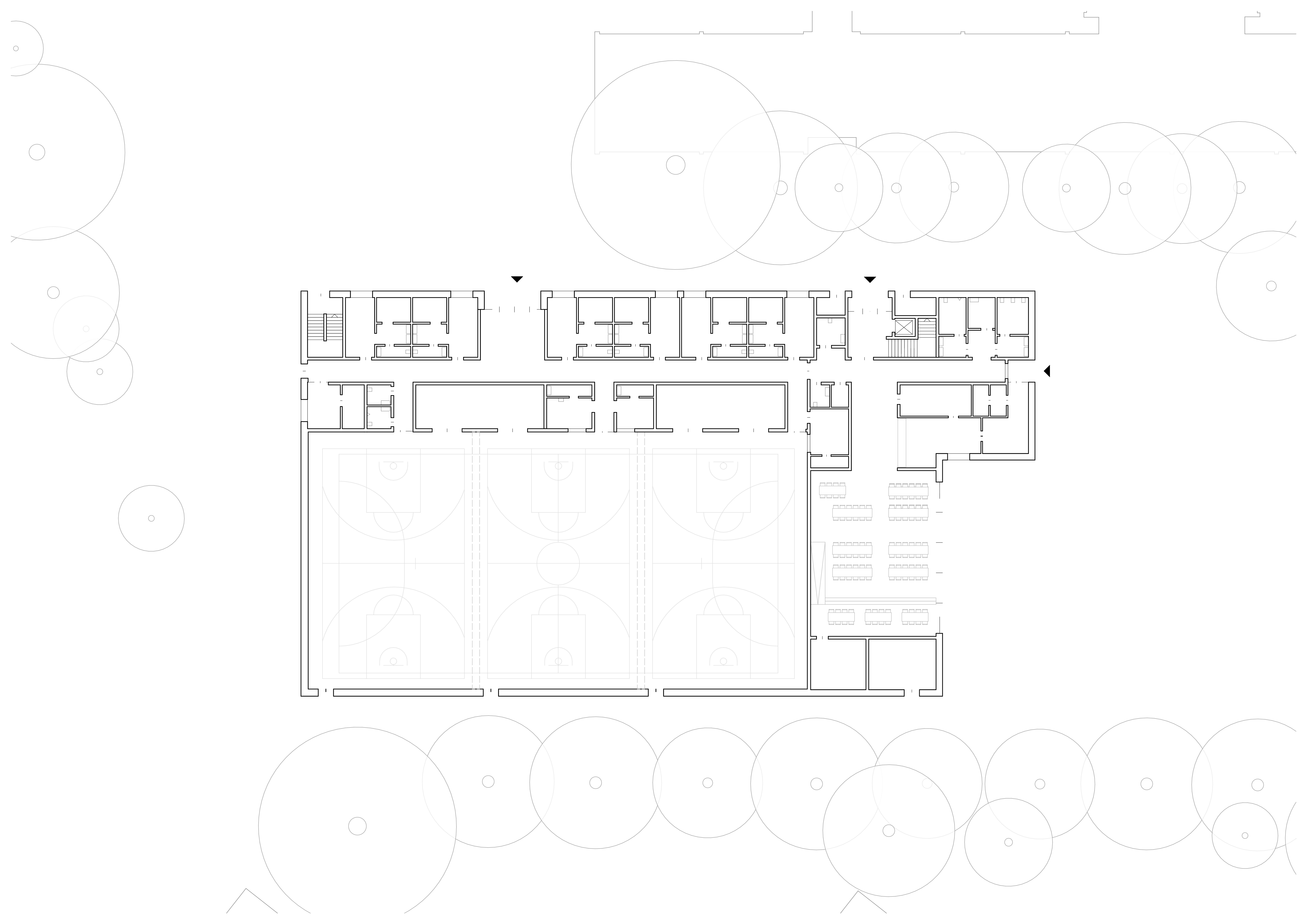
Der Neubau wird parallel und leicht versetzt zum Bestandsbau in Süd-West Richtung geplant. Vom Schulhof können die Sporthalle, die Fachklassenräume und Mensa erschlossen werden.
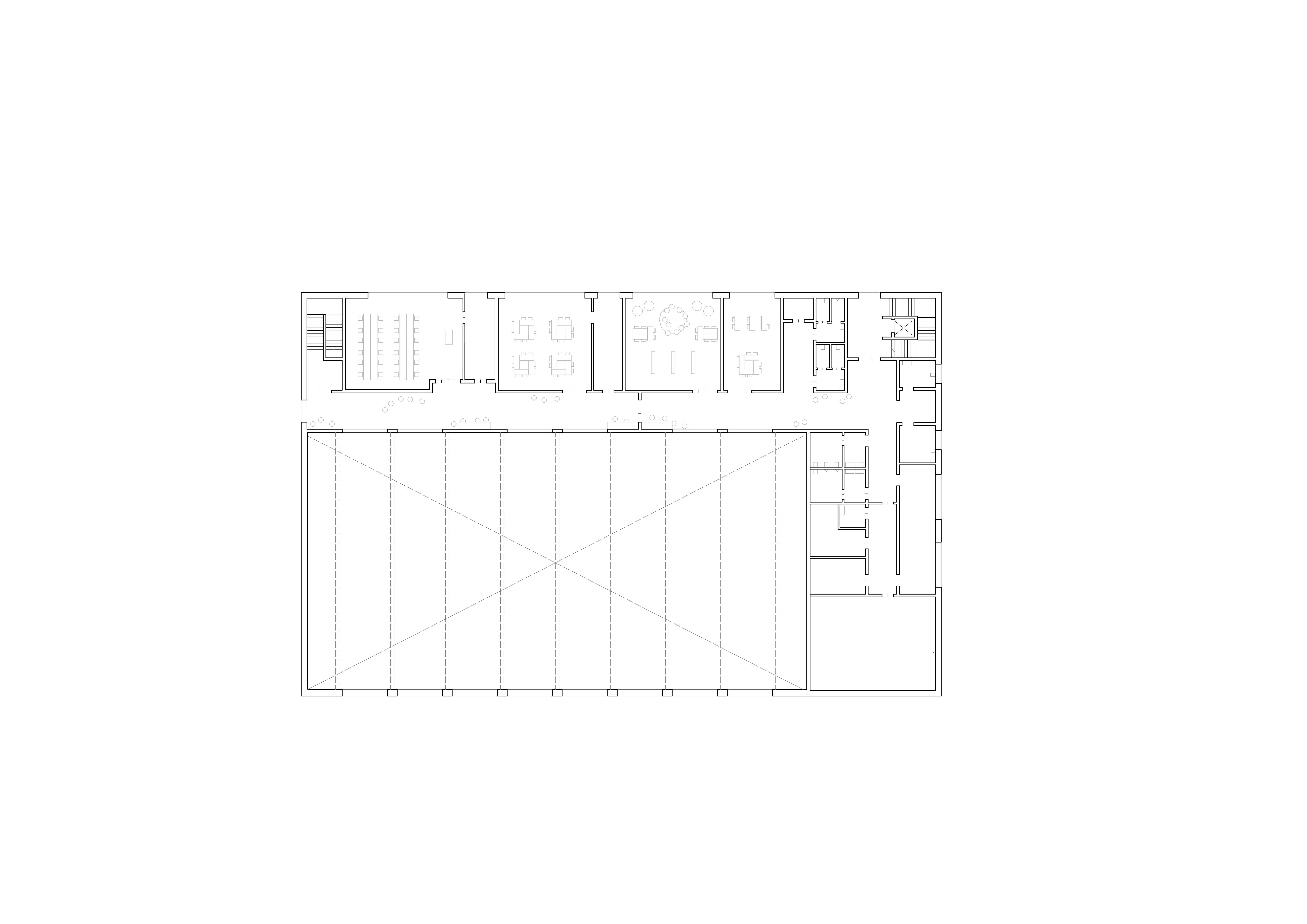
Es ist ein 2-geschossiger Baukörper vorgesehen. Die Bereiche der Schulnutzung, der Mensa und der Umkleiden für die Sporthalle legen sich L-förmig um die geplante Sporthalle. Die Sporthalle verfügt über einen eigenständigen Eingang und ermöglich eine unabhänige Nutzung. Für die Bereiche der schulischen Nutzung und der Mensa wurde auf Funktionalität und Flexibilät geachtet.
Ein von der Sporthalle unabhöniger Eingangsbereich wurde vorgesehen. Somit kann eine nutzungsdifferenzierte Erschließung erfolgen. Die Fachklassen, Schülerbibliothek, sowie eine Sprach-Lern-Klasse sind im Obergeschoss platziert. Für die Flurbereiche vor den Klassenräumen wird ein Bereich geschaffen, der von den Schüler:innen und dem Lehrpersonal frei interpretierbar genutzt und gestaltet werden kann.