Status: Wettbewerb 3. Preis
Bauherr: Stadt Wilhelmshaven
Jahr: 2022
Lph: WB
Neubau Oberschule mit Stadtteilzentrum
Wilhelmshaven
Der Ort ist sich Adresse genug
Die gestalterische Leitidee leitet sich konsequent aus dem Ort selbst ab. Der grüne Gürtel und der angrenzende Wald bilden die atmosphärische Grundlage des Entwurfs. Diese landschaftlichen Qualitäten prägen das Konzept maßgeblich und werden architektonisch weitergedacht.
Mit dem Leitbild „Schule im Park“ werden die natürlichen Gegebenheiten nicht nur berücksichtigt, sondern bewusst als integrale Bestandteile des Entwurfs verstanden und gestärkt.
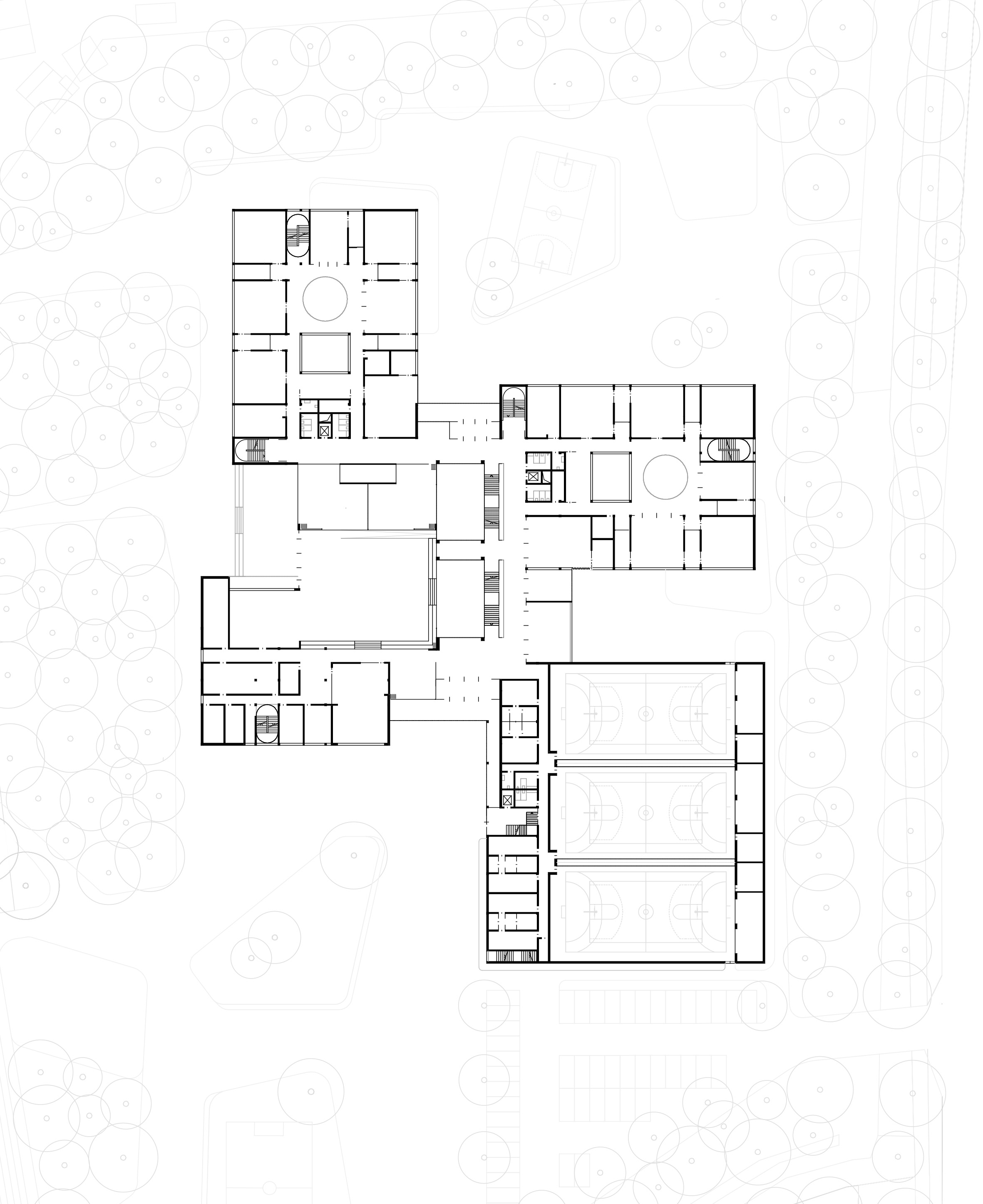
Ein fein austariertes Wegenetz verknüpft funktional und räumlich das Schulgelände mit dem benachbarten Sportareal und der umgebenden Natur. Wege und Blickbeziehungen sind nicht zufällig, sondern werden als gestalterische Elemente aufgenommen und in der Architektur reflektiert. Zentraler Knotenpunkt dieses Systems ist ein offener Platz – das Forum –, das als verbindendes Element zwischen Innen- und Außenraum dient.
Die beiden Pausenbereiche im Norden und Süden übernehmen jeweils Eingangsfunktionen und strukturieren das Erschließungskonzept. Der zentrale Platz fungiert dabei nicht nur als Verteiler, sondern vor allem als sozialer Ort. Im Innenraum setzt sich dieser Gedanke fort – das Forum wird zur räumlichen Mitte und macht den besonderen Charakter des Ortes erlebbar.
Die gestaffelte, differenzierte Anordnung der Baukörper ermöglicht eine klare Lesbarkeit der einzelnen Funktionen. Gleichzeitig entsteht ein starkes, zusammenhängendes Bild: ein Ort der Gemeinschaft mit identitätsstiftender Wirkung.