Status: 1. Preis in Planung
Bauherr: Stadt Mannheim, BBS Mannheim
Jahr: 2023
BGF: 6.800 m2
Lph: 1-5
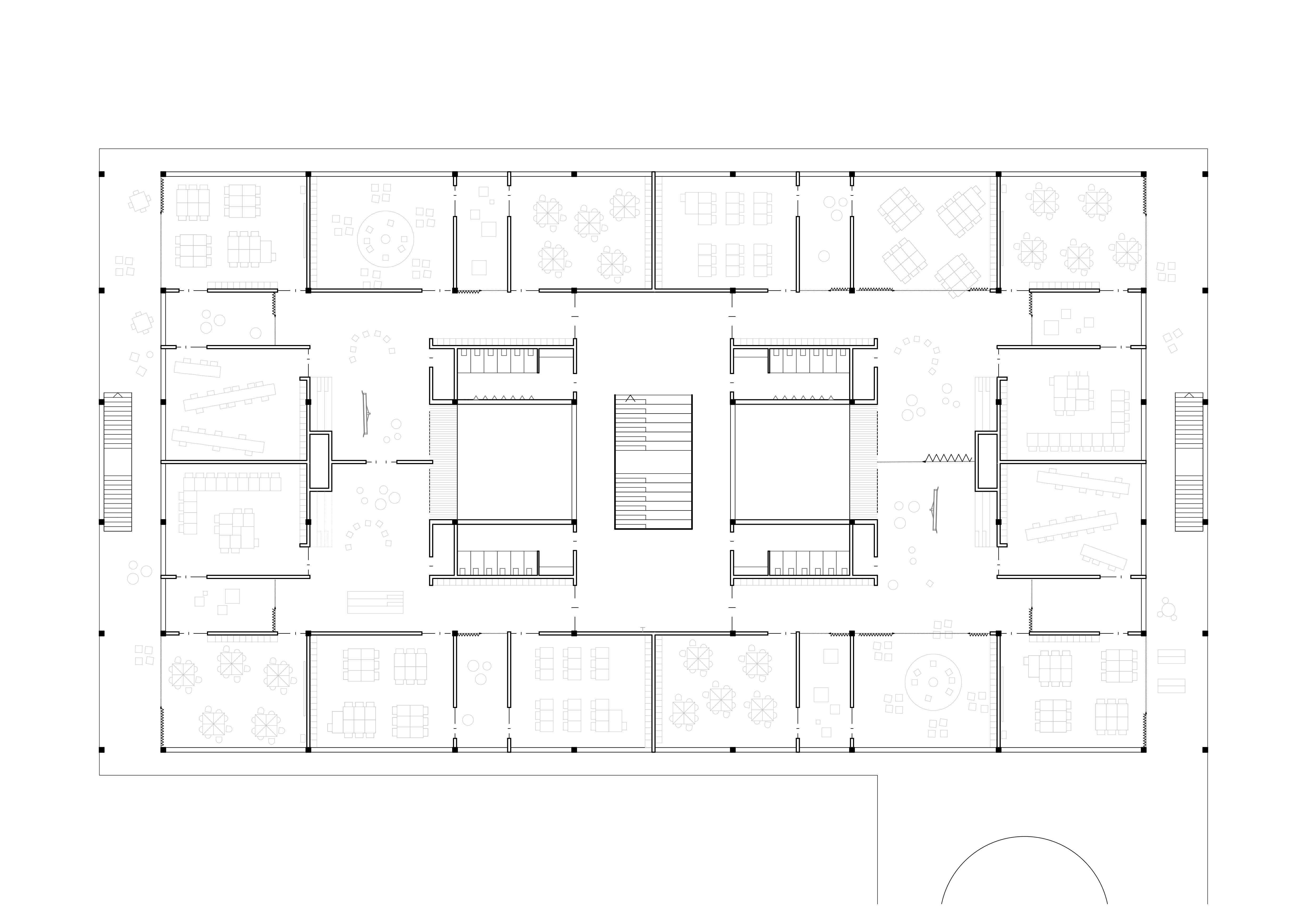
Neubau Grundschule mit einer Einfeldturnhalle
Mannheim
Ein zentraler Vorplatz bildet die Grundlage für das Erschließungskonzept und die Adressbeziehungen.
Er fungiert als Auftakt des grünen Gürtels, als Kommunikationszone sowie als offener und sozialer Begegnungsort.
Die Übersetzung des Raumprogramms in eine Architektur ist von besonderer Relevanz. Es ist eine Kunst, den Fokus nicht alleine auf die Raumeinheiten zu setzen, sondern auch den sog. "Raum dazwischen" zu berücksichtigen. Dazu zählen Gänge, Flure, Treppenhäuser und Platzräume, welche wichtige Orte der Kommunikation, der Begegnung und des sozialen Kontakts zwischen Schüler:innen, Lehrer:innen und Besucher:innen darstellen.
Die bauliche Offenheit zur umliegenden Landschaft bietet den notwendigen Raum für die Regeneration in den Pausen. Sämtliche Funktionen werden ökonomisch und zugleich flexibel angeordnet. Eine kontinuierliche Dynamik prägt das Erschließungssystem.
Die Konstruktion wird als Hybrid-Bauweise vorgeschlagen und erfüllt die Anforderungen eines zeitgemäßen Hauses. Als primäre Konstruktion wird eine tragende Betonskelettbauweise vorgesehen.