Status: 1.Preis im Bau
Bauherr: Stadt Gehrden
Jahr: 2019-2023
BGF: 5.600 m2
Lph: 1-8
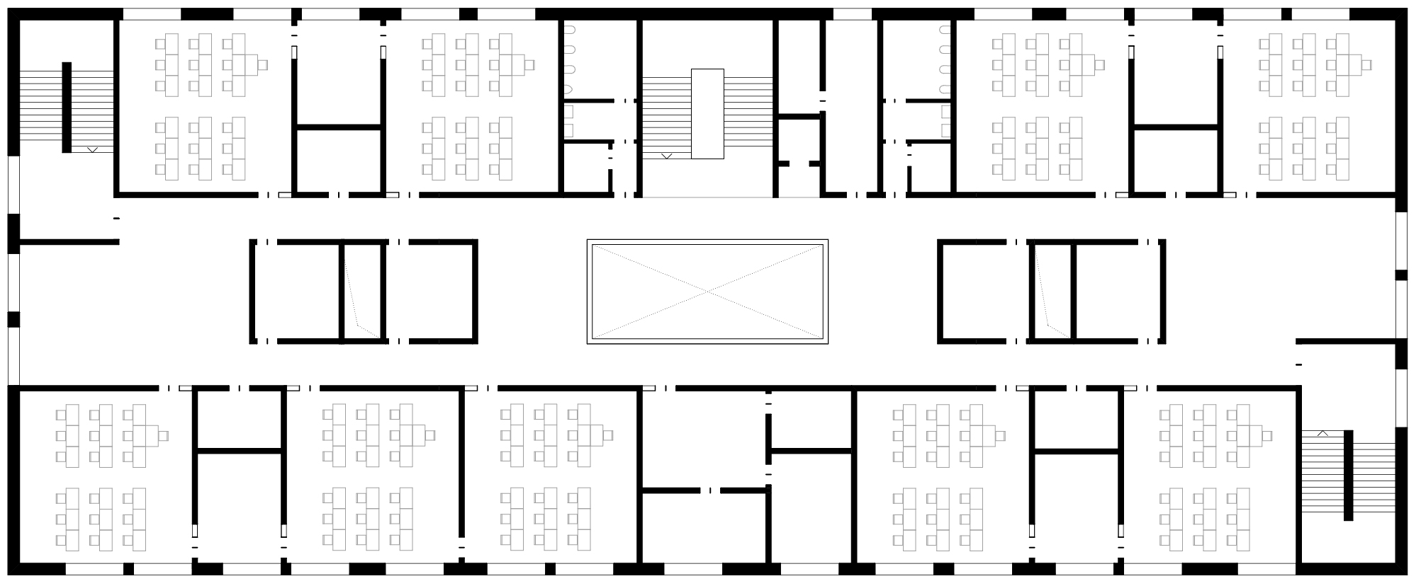
Neubau 4-zügige Grundschule
Gehrden
Das städtebauliche Ziel der Arbeit ist, den Neubau städtebaulich so zu positionieren, dass eine räumliche Vernetzung zwischen dem Bestand und dem Schulhof entsteht. Gemeint sind räumliche und visuelle Beziehungen, welche auf unmerkliche Weise in das Außen- und Innenraumkonzept integriert werden.
Der Neubau ist als Erweiterung des bestehenden städtebaulichen Bildes des Schulcampus, angedacht. Die Setzung des Neubaus soll eine eindeutige Adressbildung generieren. Die Freiflächen werden nach Süden ausgerichtet.
Es entsteht eine großzügige Freifläche, welche aus den bestehenden Raumkanten resultiert. Gemeint ist der „grüne Themen Teppich“, welcher sich unter die Häuser schiebt. Er ist Ort des Kommens und Gehens, des Spielens und Lernens. Er verknüpft die Sekundarstufen und ist Ort des Austausches und der Kommunikation.