 
       
        Status: Wettbewerb
Bauherr: Staatliches Bauamt Passau
Jahr: 2014
BGF: 12.000 m2
Lph: WB
 
        Neubau nachhaltige Chemie
Straubing
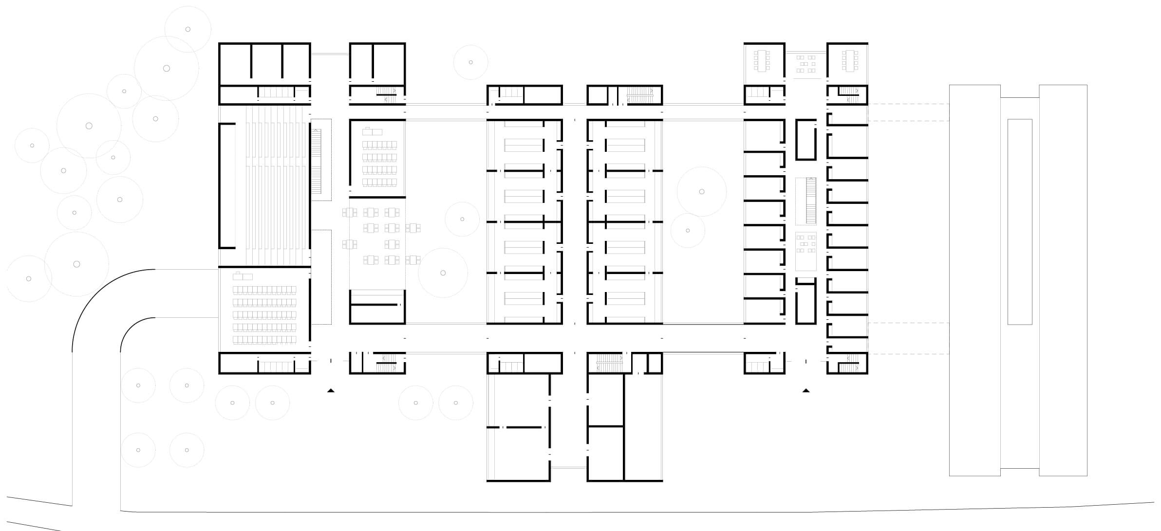
Stadt Land Fluss. In diesen städtebaulichen Gegebenheiten findet das Wissenschaftszentrum Straubing seine bauliche Erweiterung.
Drei längliche, zueinander verschobene, Baukörper präsentieren sich als Entwurf für den Neubau.
 
        Urbane Freiräume sollen entstehen, welche zwischen gebauter und natürlicher Struktur vermitteln. Kleine Vorbereiche markieren Eingänge und Übergänge und sollen die Stadt mit der Auenlandschaft verzahnen.
Holzlager - Das wäre, aus Sicht der Verfasser, schon ein identitätsstiftendes Bild für den Neubau.
Die drei Volumen aus aufeinander gestapeltem Holz liegen ruhig auf der Wiese.
Präzise und sauber wie Schnittholz das zum Trocknen aufgeschichtet wurde.
 
    