Status: im Bau
Bauherr: Stadt Osnabrück
Jahr: 2022-2025
BGF: 5.600 m2
Lph: 1-8 als Generalplaner
Erweiterung Bertha-von-Suttner Oberschule
Osnabrück
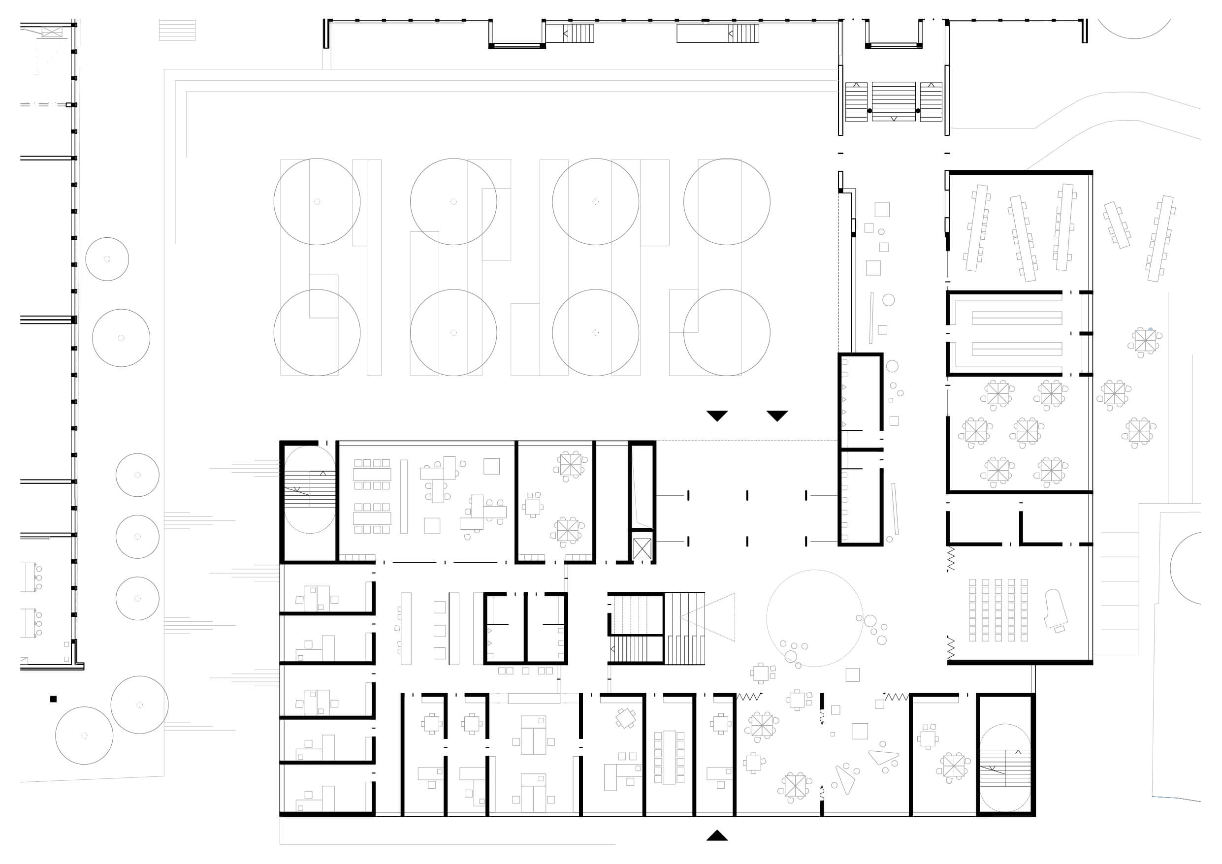
Der Fokus liegt bei der Erweiterung räumlicher Möglichkeiten und dem Wahren der Freiraumqualitäten. Dauzu gehört ebenfalls das Erkennen bestehender Raum- und Blickbezüge sowie dessen Integration. Die Setzung des Neubaus denkt das bestehende Gebäudekonstrukt weiter und komplettiert die Straßenflucht entlang der Gottlieb-Planck-Straße.
Ein präziser und gleichsam geschützter Schulhof entsteht. Ruhige und differenzierte Freibereiche werden ebenfalls vorgeschlagen. Sie fungieren als Freiluft-Atelier und werden als frei interpretierbarer Außenraum entworfen. Neubau und Bestand werden innenräumlich als fließender Übergang verstanden und als eine Raumeinheit ausgebildet.
Die Kreativräume mit Ausstellungsflächen sind das Bindeglied zwischen Bestand und Neubau. Sie sind soziale Orte und unterstreichen den öffentlichen Bereich des Hauses. Hier finden Kommunikationen und Begegnungen statt.
Absicht der Verfasser ist die geschickte Aufweitung der Flurbereiche. Dieser ist definiert als der sog. "Raum dazwischen". Er bildet eine kommunikative Raumschlae.
Jede Nutzungseinheit verfügt über einen klar zugeordneten, angemessenen Eingangsbereich. Dieses Prinzip wird in den marktplatzartigen Gemeinschaftsbereichen der einzelnen Cluster weitergeführt. Eine zentrale Sitzstufenanlage schafft dabei eine räumliche Verbindung zwischen den Geschossen und fördert die Durchmischung der verschiedenen Raumeinheiten.
Eine differenzierte Innenraumgestaltung unterstützt die Orientierung im Gebäude und verleiht den einzelnen Bereichen eine eigenständige Identität.
Die Konstruktion orientiert sich am Bestand und wird als hybride Bauweise neu interpretiert.